Lakeside, Orchard Park, Station Road, Hubberts Bridge, Boston, PE20

For Sale - Leasehold - £125,000

front

2 Bedrooms, 1 Reception, 1 Bathroom, Park Home, Leasehold

A premium lodge located on this picturesque park on the outskirts of the pleasant Lincolnshire village of Hubberts Bridge with two golf courses close by and a local pub. The busy market town of Boston is only a ten minute drive away, offering plenty of shops, restaurants, supermarkets and amenities. The lodge is beautifully presented and maintained with two bedrooms,- ensuite shower room to bedroom one, a main bathroom, modern fitted kitchen and very spacious open plan lounge/diner. Outside, there are attractive lawned gardens to either side and a stone chipped parking area but undoubtedly one of the huge selling points of the home is the location- against the beautiful 5 acre lake with spectacular views throughout the seasons, with various wildlife on your doorstep - a real nature haven. Best viewed for yourself - make an appointment now.


This Beautiful 40' X 20' Lodge Is Positioned Next To The Lake, With Spectacular Countryside Views

2 Bedrooms With En-Suite Shower Room To Master Bedroom & Family Bathroom

19' X 16' Open Plan Lounge/Diner Also Overlooking The Lake+ Modern Fitted Kitchen

Lawned Gardens To Both Sides With A Large Decked Seating Area Looking Over The Lake

Parking To The Side Of The Lodge

11 Month Occupancy - Must Vacate In February

Gas Central Heating (LPG From Site)& uPVC Double Glazing

Access Is Via A Gated Community - Please Call For A Viewing Appointment

Leasehold


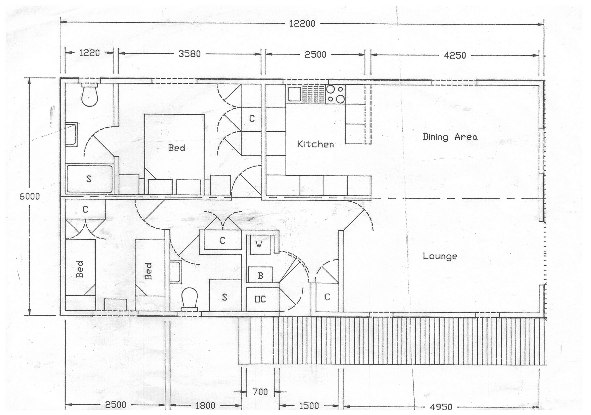
side lounge/diner lounge lounge lounge kitchen kitchen kitchen dining area bedroom one shower room bedroom two bathroom side garden decking/views side/rear view side decking views from home view view outside
Entrance Hall Having a UPVC double glazed entrance door, builtin
cloaks cupboard with hanging rail, built-in
storage cupboard with space and plumbing for
automatic washing machine, fitted shelving, wall
mounted Baxi gas central heating combination
boiler, radiator, further built-in storage cupboard
with shelving, wood block flooring and two ceiling
light points.
  

 
  
Lounge/Diner 19'2" x 16'5" (5.84m x 5.00m) maximum
Having a feature fireplace with integrated electric
living flame fire, polished wood block flooring,
radiator, two ceiling light points and UPVC double
glazed French doors to the decking with views out
across the lake.
  

 
  
Kitchen 9'4" x 9'0" (2.84m x 2.74m)
Having a one and a half bowl single drainer
stainless steel sink unit and mixer tap set in roll
edged work surfaces extending to highlight a range of fitted white, wood grain effect base cupboards and drawers under together with matching range of wall mounted storage cupboards over, three-quarter height matching unit housing electric double oven and microwave with cupboards above and below, integrated dishwasher with matching door front, tiled splash backs, inset four burner stainless steel gas hob with stainless steel canopy extractor hood over, space for fridge/freezer, wood block flooring and set of ceiling spotlights.
  

 
  
Bedroom One 12'0" x 9'2" (3.66m x 2.79m)
Having a radiator, range of fitted wardrobes with hanging rails and ceiling light point.
  

 
  
En-Suite Shower Room 9'3" x 4'0" (2.82m x 1.22m)
Having a three-piece white suite comprising double sized shower cubicle with mixer shower therein, hand basin with toiletry cupboards under, close coupled WC, fitted mirror, chrome ladder style towel rail, extractor fan and ceiling spotlights.
  

 
  
Bedroom Two 9'8" x 8'3" (2.95m x 2.51m)
Having a fitted double wardrobe with hanging rail, radiator and ceiling light point.
  

 
  
Bathroom Having a three-piece white bathroom suite comprising panelled bath set in splash surround with Trevi mixer shower over and folding shower screen, pedestal wash basin with toiletry cupboards under, close coupled WC, fitted mirror, extractor fan and set of three ceiling spotlights.  

 
  
Outside   
Front Orchard Park is accessed from Station Road in Hubberts Bridge. This section of the park is on the right hand side (if travelling from the village of Hubberts Bridge). You will then pass the on-site restaurant and through the security barrier. No19 is positioned right towards the bottom of the site in a superb location overlooking the huge lake.

The lodge is approached over a stone chipped driveway providing a private parking space.
  

 
  
Side To either side of the property is an attractive but low maintenance lawned garden with pretty flower border.  

 
  
Rear The main rear of the property is a large decked seating area with stunning views over the lake which is free to fish for the residents of the site. It is understood that the lake is well stocked with a good variety of freshwater fish.  

 
  
Agents Notes:- Orchard park is a picturesque site suitable for the Over 50's only. The lodges are available for 11 month occupancy - it must be vacated for the month of February.

The current owners reside in the property as their primary residential address and are selling the property with a 28 year licence agreement (to be confirmed).

As with all similar properties, at the time of sale a
percentage (usually 10%) is payable to the site.

The annual ground rent/service charges are:- approx £3,600 (2025).

Mains electric is fully connected and the gas supply
is provided from a site LPG tank. You are metered
for your own use only.

Water is metered.

The sellers have advised us that the utilities cost as of 2025 are approx £300 per quarter
  

 
  
Additional notes:- Please note that some of the photos are recently taken (by the seller) and some were taken several years ago. They go provide an accurate impression of the property but viewings are always recommended before submitting an offer.  

 
  
Branch Address
12 Lincoln Road<br>Skegness<br>Lincolnshire<br>PE25 2RZ
Contact
A: Beam Estate Agents
T: 01754 629305
E: info@beamestateagents.co.uk
Reference: BEAME_002075
IMPORTANT NOTICE
Descriptions of the property are subjective and are used in good faith as an opinion and NOT as a statement of fact. Please make further specific enquires to ensure that our descriptions are likely to match any expectations you may have of the property. We have not tested any services, systems or appliances at this property. We strongly recommend that all the information we provide be verified by you on inspection, and by your Surveyor and Conveyancer.